Volver
SOLICITAR VISITA
REFERENCIA: 4405/4445 - Chalet/casa adosado en venta en RESIDENCIAL EL ROBLEDAL / Cuacos de Yuste (Cáceres).
- Precio de Venta: 293.832 €
VENTA DE VIVIENDAS DE NUEVA CONSTRUCCION EN CUACOS DE YUSTE.
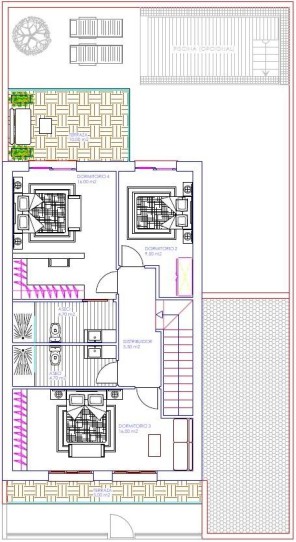
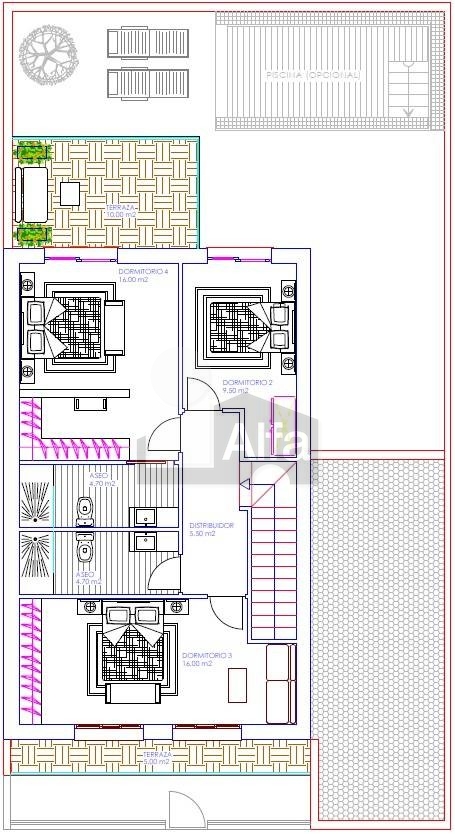
Cuenta con una parcela de 200 m2 aprox, con una superficie construida de 155m2 en dos plantas y un jardin de 110m2 aprox.
¡Descubre tu nuevo hogar en un entorno tranquilo y natural! Estas exclusivas viviendas de nueva construcción, situadas en Cuacos de Yuste, ofrecen una combinación perfecta de confort, diseño moderno y materiales de primera calidad.
Cada vivienda cuenta con dos plantas bien distribuidas, ofreciendo un total de cuatro amplias habitaciones, ideales para adaptarse a las necesidades de cualquier familia. Además, dispone de tres baños, uno de ellos en suite, que incluye un vestidor privado, proporcionando privacidad y comodidad a los residentes.
La vivienda está equipada con una plaza de garaje incluida en el precio, garantizando la comodidad de aparcar sin preocupaciones. Además, para aquellos que busquen ampliar su espacio de ocio, existe la opción de instalar una piscina, dado que la propiedad cuenta con una parcela de aproximadamente 120 m², perfecta para disfrutar del aire libre.
La calidad de los materiales utilizados en la construcción es inmejorable: suelos de pavimento porcelánico de alta gama, calefacción por suelo radiante refrescante para mantener una temperatura óptima durante todo el año, y ventanas de climalit con doble cristal y persianas de aluminio, que aseguran un excelente aislamiento térmico y acústico, además de eficiencia energética.
Ubicada en un entorno tranquilo y pintoresco, estas viviendas son el lugar perfecto para quienes buscan una casa moderna, con todas las comodidades, en una ubicación privilegiada. ¡No dejes pasar esta oportunidad única de vivir en Cuacos de Yuste!
Son 6 viviendas y tendrán una fecha aproximada de entrega de 14 meses.
La viviendas estan a la venta por 293.832,00€ + 10% I.V.A
TRATO DIRECTO CON LA PROPIEDAD. TOTAL TRASNPARENCIA. NO COBRAMOS HONORARIOS AL COMPRADOR.
Cuenta con una parcela de 200 m2 aprox, con una superficie construida de 155m2 en dos plantas y un jardin de 110m2 aprox.
¡Descubre tu nuevo hogar en un entorno tranquilo y natural! Estas exclusivas viviendas de nueva construcción, situadas en Cuacos de Yuste, ofrecen una combinación perfecta de confort, diseño moderno y materiales de primera calidad.
Cada vivienda cuenta con dos plantas bien distribuidas, ofreciendo un total de cuatro amplias habitaciones, ideales para adaptarse a las necesidades de cualquier familia. Además, dispone de tres baños, uno de ellos en suite, que incluye un vestidor privado, proporcionando privacidad y comodidad a los residentes.
La vivienda está equipada con una plaza de garaje incluida en el precio, garantizando la comodidad de aparcar sin preocupaciones. Además, para aquellos que busquen ampliar su espacio de ocio, existe la opción de instalar una piscina, dado que la propiedad cuenta con una parcela de aproximadamente 120 m², perfecta para disfrutar del aire libre.
La calidad de los materiales utilizados en la construcción es inmejorable: suelos de pavimento porcelánico de alta gama, calefacción por suelo radiante refrescante para mantener una temperatura óptima durante todo el año, y ventanas de climalit con doble cristal y persianas de aluminio, que aseguran un excelente aislamiento térmico y acústico, además de eficiencia energética.
Ubicada en un entorno tranquilo y pintoresco, estas viviendas son el lugar perfecto para quienes buscan una casa moderna, con todas las comodidades, en una ubicación privilegiada. ¡No dejes pasar esta oportunidad única de vivir en Cuacos de Yuste!
Son 6 viviendas y tendrán una fecha aproximada de entrega de 14 meses.
La viviendas estan a la venta por 293.832,00€ + 10% I.V.A
TRATO DIRECTO CON LA PROPIEDAD. TOTAL TRASNPARENCIA. NO COBRAMOS HONORARIOS AL COMPRADOR.
- Calificación consumo de energía: En trámite.
- Plantas: 2.
- Año de construcción: 2.027.
- Área total construida: 155 m2.
- Área parcela: 200 m2.
- Habitaciones: 4.
- Baños: 3.
- Plazas de parking: 1.
- Estado de conservación: promoción de obra nueva.
- Tipo calefacción: individual.
- Detalles calefacción: AEROTERMIA / SUELO RADIANTE REFRESCANTE .
- Agua caliente: individual.
- Interior/exterior: Mixto.
- Amueblado: cocina amueblada.
- Equipamiento: trastero.
- Puertas: madera lacada.
- Ventanas: PVC, doble cristal, persiana aluminio.
- Suelos: otros.
Datos de contacto
- Oficina: 4405 - Alfa Plasencia
- Teléfonos: 927 410 810 / 636 649 043
- Whatsapp: 636 649 043
- Email: [email protected]
- Web: alfaplasencia.com
Localización
Propiedad en Calle la Lancha
Hoja informativa. No incluidos gastos de Escrituración, Registro e Impuestos. El comprador sólo pagará honorarios si figura así expresamente en el apartado "descripción".
La oficina 4405, Del Rey 4 - Bajo (Plasencia - Cáceres) con nombre fiscal Alfa Inmobiliaria Plasencia, S.L. y CIF: B67795153
es responsable de los datos e información publicitados de este inmueble.
La oficina 4405, Del Rey 4 - Bajo (Plasencia - Cáceres) con nombre fiscal Alfa Inmobiliaria Plasencia, S.L. y CIF: B67795153
es responsable de los datos e información publicitados de este inmueble.



